Investkon Nieruchomości przedstawia ofertę sprzedaży apartamentu w inwestycji Nowa Wałowa w Gdańsku.
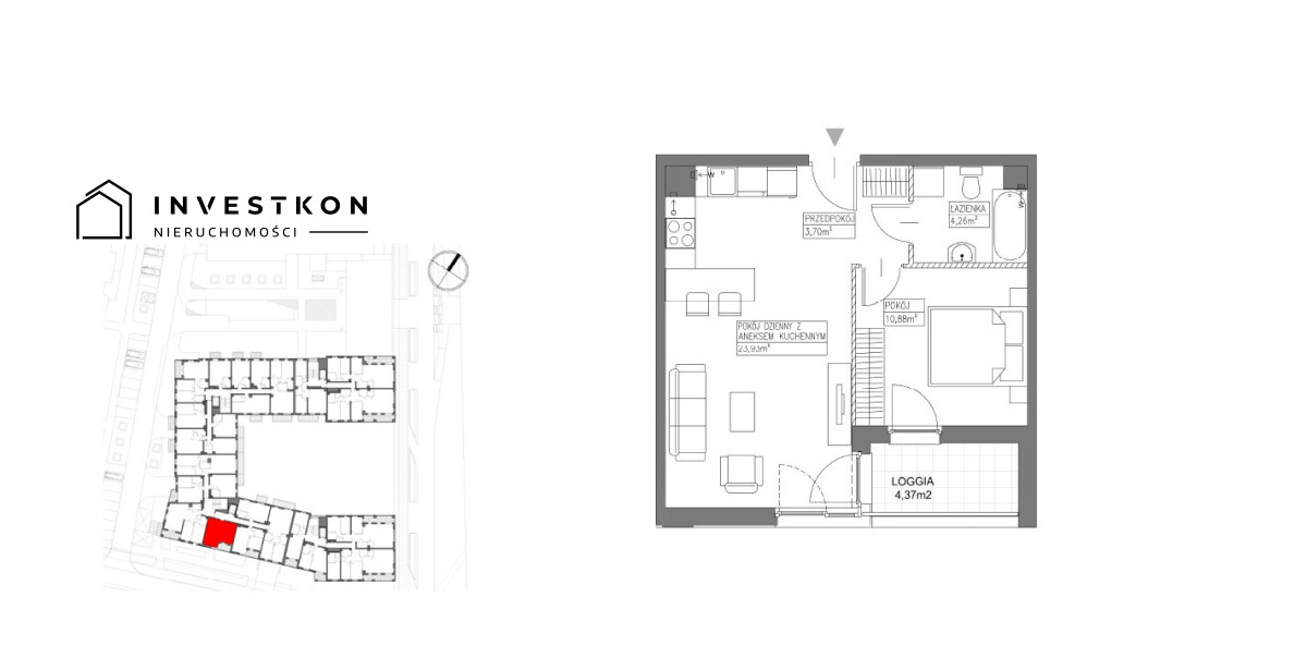
Prezentowane mieszkanie to dwupokojowy lokal w stanie deweloperskim, o powierzchni 42,75 m2 numer 2.M11, znajduje się na piętrze piętrze z loggią o powierzchni 4,37 m2 od strony południowej.
*Zdjęcia wnętrza apartamentu są poglądowe. Apartament sprzedawany jest w stanie deweloperskim. W ramach naszych usług możemy wykończyć Twój apartament pod klucz, dokładnie tak jak na zdjęciach!
Cena PROMO: 832 000 PLN
Do mieszkania przynależy miejsce parkingowe płatne dodatkowo w cenie 55 000 PLN
OPIS INWESTYCJI:
Nowa Wałowa to luksusowy projekt cechujący się unikalnym architektonicznym kunsztem inspirowanym doskonałą lokalizacją w samym sercu Gdańska, przy ul. Stępkarskiej i Wiosny Ludów. Otoczenie inwestycji, architektura nawiązująca do stoczniowego charakteru miejsca i elegancki design wnętrz tworzą miejsce dla najbardziej wymagających.
Nowa Wałowa znajduje się w samym centrum wydarzeń, z unikatowym widokiem na malownicze nabrzeże Motławy i Polskiego Haku. Jednocześnie położenie inwestycji zapewnia poczucie prywatności i spokoju. Lokalizacja w Młodym Mieście gwarantuje doskonałą komunikację z innymi częściami Gdańska i oferuje pełny dostęp do wszelkich udogodnień oraz atrakcji na miejscu - restauracji, kawiarni, sklepów, galerii handlowych. Wszystko to daje nieograniczone możliwości ciekawego spędzania czasu na co dzień. Wystarczy krótki spacer, aby:
- Spotkać się na najbardziej reprezentacyjnej ulicy w Gdańsku - Długiej.
- Znaleźć się na modnej ulicy Elektryków w samym sercu Stoczni.
- Odwiedzić klimatyczną Wyspę Spichrzów.
- Udać się w historyczno-kulturalną podróż po licznych teatrach oraz muzeach dostępnych w centrum Gdańska.
- Przejść się bulwarem spacerowym nad brzegiem Motławy.
Pomiędzy fasadą Nowej Wałowej a rzeką powstanie elegancki bulwar spacerowy z bogatą zielenią i instalacjami artystycznymi nawiązującymi do unikalnego klimatu tej lokalizacji. Na parterach budynków przewidziane są restauracje i kawiarnie, które uatrakcyjnią dodatkowo to miejsce. Całość stworzy niepowtarzalną przestrzeń rekreacyjną dla mieszkańców Gdańska.
STANDARD
- Każdy apartament przystosowany do instalacji klimatyzacji
- Fitness i sauna na terenie osiedla do wyłącznego użytku mieszkańców
- Fotowoltaika zasilająca części wspólne
- Elewacja z materiałów najwyższej jakości
- Drewniane okna
W INVESTKON Nieruchomości pomagamy naszym Klientom wybrać idealne mieszkanie, aby bez zbędnego stresu mogli zamieszkać w swoim wymarzonym miejscu lub mądrze zainwestować kapitał w nieruchomość. Biuro nie pobiera wynagrodzenia od Kupującego z tytułu pomocy w zakupie mieszkania na rynku pierwotnym. W naszej ofercie posiadamy wiele mieszkań z rynku pierwotnego.
-------------------------------------------------------------------------------------------------------------------------------------
W ramach INVESTKON Nieruchomości pomożemy Ci w doborze najlepszej opcji finansowania interesującej Cię nieruchomości. Nasi Doradcy znajdą dla Ciebie najbardziej atrakcyjną ofertę kredytu hipotecznego bez dodatkowych kosztów.
________________________________________________________________________________
INVESTKON Nieruchomości to agencja powstała z pasji do nieruchomości. Działając od lat na rynku trójmiejskich nieruchomości założyliśmy agencję, której najwyższym celem jest wysoka jakość usług i interes Klienta. Wierzymy, iż działanie zgodnie z kodeksem etyki zawodowej pośredników w obrocie nieruchomościami to najlepsza droga aby gwarantować naszym klientom uczciwą i indywidualną opiekę w procesie sprzedaży lub zakupu nieruchomości.
________________________________________________________________________________
Poznaj nas lepiej:
Instagram: @investkon.nieruchomosci
Apartament w inwestycji premium nad Motławą
lokalizacja: Gdańsk, Stępkarska
832 000,00 PLN
19 461,99 PLN
Dane szczegółowe
- Typ transakcji: sprzedaż
- Typ nieruchomości: Mieszkanie
- Lokalizacja: Gdańsk Śródmieście, Stępkarska
- Powierzchnia:42,75 m2
- Liczba pokoi: 2
- Rok budowy: 2027
- Piętro: 3 z 7
- Numer oferty: 234684
- Cena: 832 000,00 PLN
- Cena za m2: 19 461,99 PLN
Opis nieruchomości
Film o nieruchomości
Kontakt do opiekuna:
Investkon Nieruchomości