BUDYNEK:
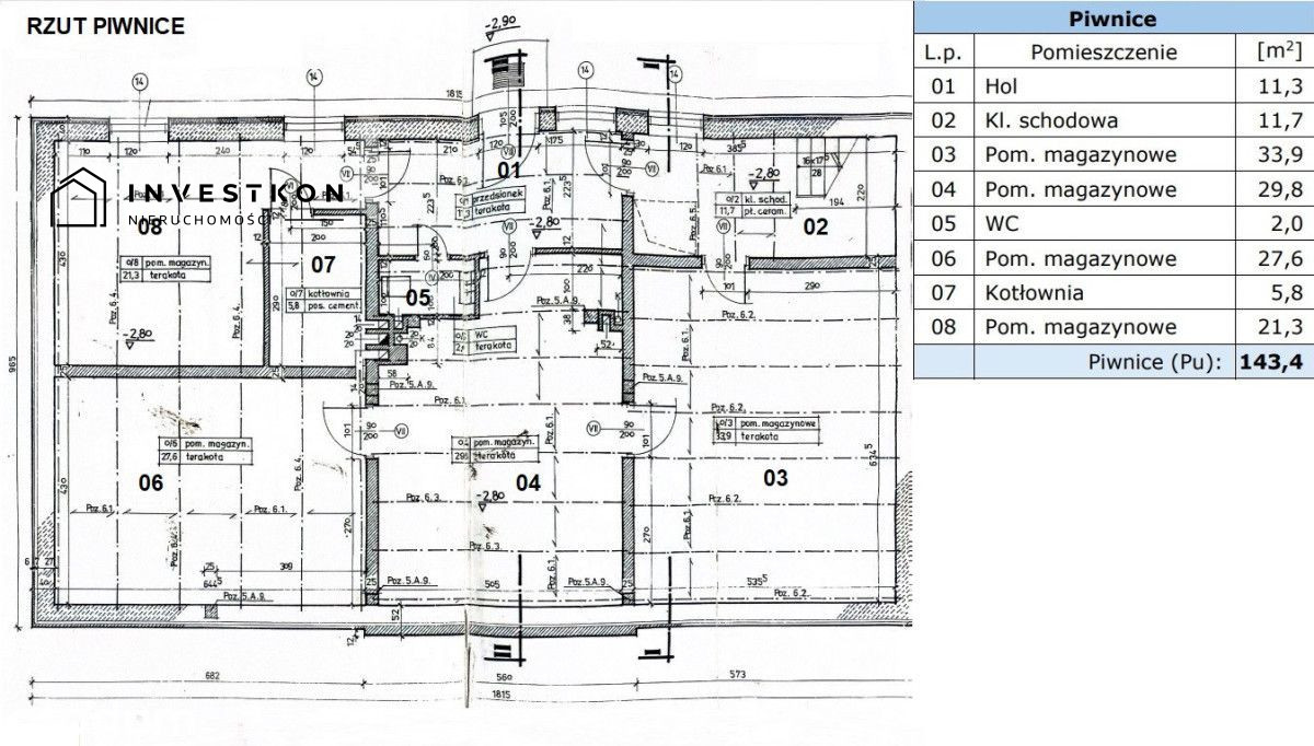
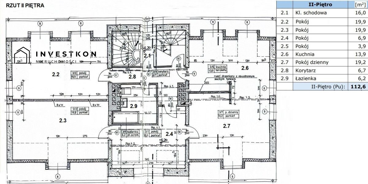
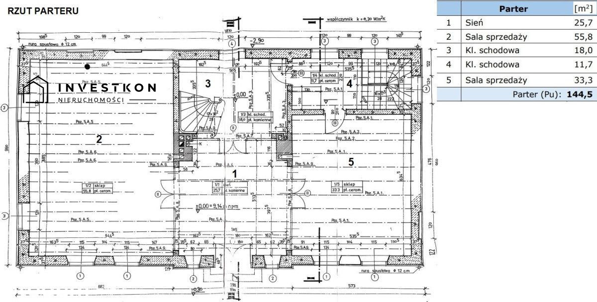
Kamienica budowana od podstaw w latach 1995-2000, celem odwzorowania historycznego dworku. Powierzchnia użytkowa budynku wynosi 593,6 m² z podziałem na część usługową (431,4 m²) oraz mieszkalną (162,2 m²). Nieruchomość składa się z trzech kondygnacji nadziemnych (parter oraz I piętro część usługowa, II piętro część mieszkalna) oraz z pełnego podpiwniczenia. Wysoki standard wykończenia - zmodernizowany, z nowoczesnymi instalacjami (CO, wodno-kanalizacyjną, elektryczną, wentylacyjną, klimatyzacyjną, teletechniczną oraz domofonową). Obiekt wykonano w tradycyjnej technologii murowanej z cegły, a dach pokryto dachówką ceramiczną.
DZIAŁKA:
Nieruchomość wybudowana na działce o powierzchni 716 m² z dostępem do dodatkowego terenu 500m2 do wyłącznej dyspozycji właściciela gruntu (użytkowanie na podstawie rokrocznej opłaty). Teren zagospodarowany - parking, wiata, ogród oraz drzewka ozdobne.
LOKALIZACJA:
Nieruchomość położona w Gdańsku Wrzeszczu, w odległości około 4 km od centrum. Położenie przy kameralnej ulicy w sąsiedztwie Parku nad Strzyżą. Doskonała lokalizacja, zapewnia bliskość głównej arterii Gdańska, ul. Grunwaldzkiej. Zaledwie 1km do dworca kolejowego we Wrzeszczu oraz 1,4km do Galerii Bałtyckiej.
HISTORIA:
Historia budynku sięga XVII wieku, kiedy to w rejonie dzisiejszej ul. Konrada Leczkowa rozwijała się osada Nowe Szkoty. W XVIII wieku na planach miasta widnieje już istniejący dwór, który przez lata pełnił różne funkcje mieszkalne i usługowe. Na przestrzeni XIX i XX wieku budynek był własnością wielu znanych gdańskich rodzin, w tym rodziny Boschke oraz Gustawa Pilitza.
Gdańsk
lokalizacja: Gdańsk
6 500 000,00 PLN
10 950,13 PLN
Dane szczegółowe
- Typ transakcji: sprzedaż
- Typ nieruchomości: Komercyjny
- Lokalizacja: Gdańsk Wrzeszcz Dolny
- Powierzchnia:593,60 m2
- Rok budowy: 1995
-
Powierzchnia działki:
716 m2
- Numer oferty: 168332
- Cena: 6 500 000,00 PLN
- Cena za m2: 10 950,13 PLN
Opis nieruchomości
Kontakt do opiekuna:
Investkon Nieruchomości